Proyectos: Residencial

PV+3 designprojects ha realizado todo tipo de proyectos residenciales, desde viviendas unifamiliares aisladas, conjuntos residenciales de vivienda aislada y adosada, edificios de viviendas en tejidos urbanos…, en cada caso hemos tenido que aplicar un criterio distinto, debido a que en algunas ocasiones, tuvimos que ceñirnos a una normativa municipal, y en otras,el presupuesto no podía sufrir ninguna variación, impuesto por el cliente,pero en todo caso , siempre aplicamos una lógica para cada intervención, priorizando siempre las necesidades del ser humano. Hemos intentado trabajar por y para la gente, cuidando el detalle y diseño constructivo, teniendo en cuenta temas tan importantes como la sostenibilidad, ahorro energético, utilización de materiales ecológicos, y todo ello , con el objetivo de crear espacios a medida para cada cliente.

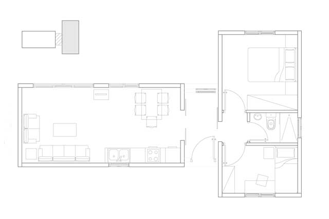
A 10 Km de Barcelona , en la población de Sant Boi del Llobregat, nos llegó el encargo de una vivienda unifamiliar aislada, en la urbanización de Camps Blancs

Este proyecto se convirtió en reto para nuestro equipo debido a que se trataba de un edifico plurifamiliar de 20 viviendas en Argel, ciudad con una cultura y 

A petición de varios clientes, se nos planteó la necesidad de realizar un estudio exhaustivo sobre varias tipologías de vivienda unifamiliar aislada, de rápida

En un solar de la Costa Brava , en Tossa de Mar, un cliente nos encargó el proyecto de una casa unifamiliar aislada, para uso …

En este proyecto de reforma integral de una vivienda unifamiliar aislada, nos entusiasmó la idea de poder trabajar para una pareja de  …

Este proyecto nos hizo especial ilusión, por tratarse de un buen amigo el que lo promovió como cliente. El solar de geometría trapezoid….

Casa EQU , Barcelona , España

A 10 Km de Barcelona , en la población de Sant Boi del Llobregat, nos llegó el encargo de una vivienda unifamiliar aislada, en la urbanización de Camps Blancs. Se trata de una zona residencial situada en una parte elevada de dicha población. En este proyecto , la parcela tenía una pequeño desnivel desde la calle, que aprovechamos para crear un cámara sanitaria que albergara todas las instalaciones, incluyendo las de una piscina anexa en el exterior. El objetivo fue proyectar una base donde apoyar dos volúmenes monolíticos cúbicos , como si de 2 rocas del terreno se tratara , separadas entre sí por el acceso a la casa. Cada volumen “roca” contiene un espacio programático distinto, por un lado, la zona de día ligada a la piscina(salón-comedor-cocina), y por el otro, la zona de noche(habitaciones, baños, vestidor).Ambas “rocas” se abastecen del espacio generado en la base ,o cámara sanitaria, a modo de bodega, despensa o trastero. Esta cámara sanitaria es además el espacio por donde circulan las “arterias” o tubos y conductos de instalaciones principales de la casa. A este espacio se puede acceder desde la parte trasera de la casa , mediante una puerta ubicada debajo de las escaleras exteriores que facilitan el acceso a la habitación de matrimonio. También se diseñó una escalera desplegable tipo de barco, para poder acceder a toda la cubierta de la casa, y así poder disfrutar de las vistas panorámicas, además de dotar a dicha cubierta, de una zona de relax, de un segundo salón exterior, con sus protecciones solares a modo de lonas desplegables. El acceso a la vivienda se encuentra definido por una pavimentación de hormigón impreso, y por unos materiales diferentes a los dos volúmenes monolíticos, como lo son la madera y el cristal. El espacio exterior de la piscina , está delimitado por una pavimentación de tablones de madera de iroko , y la parte posterior de la casa se diseña como un jardín privado, con áreas marcadas con alineaciones de piedras de río blancas. Tan solo decir, que hemos disfrutado viendo que la suma de pequeños espacios dan un gran sentido a la vida de una familias..

PV+3 DesignProjects
PV+3 DesignProjects
PV+3 DesignProjects
PV+3 DesignProjects
PV+3 DesignProjects
PV+3 DesignProjects
PV+3 DesignProjects
PV+3 DesignProjects
PV+3 DesignProjects

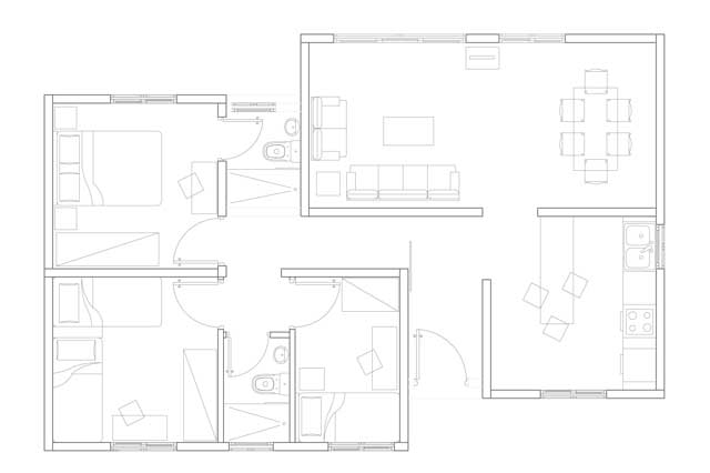
Comune de Bouzareah, Argelia

Este proyecto se convirtió en reto para nuestro equipo debido a que se trataba de un edifico plurifamiliar de 20 viviendas en Argel, ciudad con una cultura y religión diferentes a la nuestra. Nuestro equipo se ocupó de diseñar las viviendas y de llevar a cabo la ejecución de la estructura del bloque. Nos entusiasmó la idea de transformar un austero entorno mediante la intervención en las dos fachadas principales del bloque. En la fachada principal , que presenta vistas a la ciudad desde la parte elevada del barrio de Bouzareah , y donde se encuentran la cocina y el salón- comedor , utilizamos un sistema de cerramientos de persianas correderas de madera azul,como las que muestran muchos edificios de la ciudad, para mantener la máxima privacidad en las terrazas, y sin embargo ,en la fachada posterior, donde se encuentran las habitaciones , también creamos unas terrazas , pero en este caso , alternamos diferentes plantas , creando volúmenes salientes que conformaban un conjunto en la fachada insinuando letras árabes a gran escala. A cada conjunto le quisimos dar un color diferente para remarcar la voluntad de distinción respecto al resto de edificaciones del barrio.

PV+3 DesignProjects
PV+3 DesignProjects
PV+3 DesignProjects

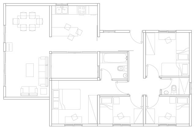
Casas Modulares, Barcelona, España

A petición de varios clientes, se nos planteó la necesidad de realizar un estudio exhaustivo sobre varias tipologías de vivienda unifamiliar aislada , de rápida ejecución , y con ello de bajo coste. Empezamos por elaborar una tipología mínima A, con 2 módulos , uno que albergara la zona de día (salón-comedor-cocina) , y el otro , que contuviera la zona de noche, (habitación simple + habitación de matrimonio+ baño compartido). En el espacio de unión entre ambos módulos, generamos el acceso y distribuidor. Ambos módulos tienen la misma dimensión, y están formados por la suma de paneles de hormigón pre-fabricados , ensamblados entre sí con un sistema de anclaje directamente en obra. Posteriormente proyectamos dos tipologías extensibles (B+C), con mayor superficie, utilizando los paneles anteriores de forma repetitiva, pero creando módulos proporcionales , separando el salón-comedor de la cocina, y añadiendo más habitaciones. En la tipología C , se nos planteó la necesidad de introducir un patio de luz interior para juntar todos los módulos, respetando los espacios intersticiales entre ellos , para ordenar circulaciones interiores y accesos a las estancias. Los paneles que conforman los módulos , presentan un despiece por paneles de carga y de traba, según lógica estructural. La colocación de los módulos en el terreno permite definir espacios exteriores delimitados por marquesinas y tarimas de madera , según orientación y actividad relacionada con los espacios interiores.


PV+3 DesignProjects
PV+3 DesignProjects
PV+3 DesignProjects
PV+3 DesignProjects
PV+3 DesignProjects
PV+3 DesignProjects
PV+3 DesignProjects
PV+3 DesignProjects
PV+3 DesignProjects
PV+3 DesignProjects
PV+3 DesignProjects
PV+3 DesignProjects

Casa Philip, Barcelona, España

En un solar de la Costa Brava , en Tossa de Mar, un cliente nos encargó el proyecto de una casa unifamiliar aislada, para uso particular en época estival. Se trataba de un terreno completamente plano, y su requisito indispensable era que todas las estancias tuvieran contacto directo con una piscina. De hecho, la piscina debía cumplir el máximo protagonismo. Proyectamos dos pastillas en forma de L , orientadas a sur-oeste. Una de ellas contenía programáticamente la zona de día(salón-comedor-cocina-acceso), y la otra , la zona de noche (habitaciones+baños).La zona de día tiene el doble de altura que la otra , pero ambas tienen en planta la misma dimensión y geometría, pero volumétricamente , la zona de día , amplía su espacio para contener en una parte lateral , una sala polivalente (estudio+cine+juegos). Ambas pastillas contienen tres de las cuatro fachadas bastante cerradas y ciegas , y la otra , totalmente abierta y comunicada a la piscina mediante cristaleras.

PV+3 DesignProjects
PV+3 DesignProjects
PV+3 DesignProjects

Casa en Begues, Barcelona, España

En este proyecto de reforma integral de una vivienda unifamiliar aislada, nos entusiasmó la idea de poder trabajar para una pareja de íntimos amigos y poder compartir la ilusión de crear un nuevo hogar para ellos y sus dos hijas. La casa tenía algunos aspectos en su distribución de la planta baja y primera que no le permitían al hogar una dinámica más funcional e integradora entre los espacios de la misma planta. Pretendimos corregir dichos aspectos en la planta baja mediante el derribo de un tabique en la sala de estar, para aumentar el espacio de la misma y comunicarlo a su vez con el comedor, y mediante la ampliación del paso entre el comedor y la cocina para conseguir una mejor conexión y fluidez entre ambos espacios a través de una gran puerta corredera tipo granero. Se intervino de la misma manera en la planta primera, derribando un tabique y un pequeño aseo, modificando así el acceso al nuevo baño. De esta manera aumentó el espacio de una salita central que acabó enfatizando aún más el volumen que generaba la cubierta a dos aguas pre-existente. A esta salita polivalente se le otorgó el protagonismo de la planta primera, al actuar como centro de gravedad de todos los espacios anexos y también como nexo de unión de las habitaciones. Además dicha salita se encarga de recibir a la gente que asciende por las escaleras a la planta primera y tiene una relación interior-exterior mediante un gran ventanal que la conecta a una terraza contigua con salida directa.

En la planta sótano se establece el concepto de espacio polivalente y camaleónico a lo largo del tiempo, respetando siempre la idea inicial de albergar las instalaciones de caldera y aerotermia además de la pre-instalación de otra caja de electricidad para una futura conexión de un coche eléctrico. Hay que tener en cuenta que todo el proyecto iba ligado a un presupuesto cerrado con los clientes, por lo que se tuvieron que tomar decisiones y estrategias de proyecto antes del comienzo de la obra. Éstas, se resumen en la implementación de nuevas instalaciones junto al aprovechamiento de una parte de estas instalaciones, en la restauración y acondicionamiento de todas las ventanas de madera originales de la vivienda y en la restauración de todas las puertas y armarios interiores con sus respectivos nuevos herrajes.

Todo ello se ejecutó con el afán de ceñirse y ajustarse al presupuesto inicial antes de empezar la obra, usando métodos y materiales tanto de nueva construcción como de rehabilitación y restauración.

Ese concepto de fusionar lo nuevo con lo preexistente nos supuso un reto muy interesante que llegó a su máxima expresión con la elección de todo el mobiliario de la casa, creando un lenguaje estético propio del que estamos muy orgullosos y ofreciendo un estilo y diseño hogareño acorde a la autenticidad de sus propietarios.

Es maravilloso conseguir la felicidad y satisfacción de todos los clientes, pero uno alcanza un sentimiento de máxima plenitud cuando esa felicidad y satisfacción proviene de unos amigos de toda la vida.

Mil gracias, Raquel y Javi, por confiar en nosotros..

PV+3 DesignProjects
PV+3 DesignProjects
PV+3 DesignProjects
PV+3 DesignProjects
PV+3 DesignProjects
PV+3 DesignProjects
PV+3 DesignProjects
PV+3 DesignProjects
PV+3 DesignProjects

Casa Xdlv, Barcelona, España

Este proyecto nos hizo especial ilusión, por tratarse de un buen amigo el que lo promovió como cliente. El solar de geometría trapezoidal , presentaba una pequeña pendiente, suficiente para escalonar toda la casa en la base mediante un muro de contención que albergara una bodega y garage. A petición del cliente, la casa debía abastecerse al máximo de los recursos naturales , cumpliendo la normativa estricta vigente, por tratarse de una parcela ubicada dentro del parque natural del Garraf, población de montaña situada a unos 30 km de distancia de Barcelona. Entre varios aspectos normativos, prevalecía el concepto cromático (color tierra )de la fachada, y la cubierta inclinada obligatoria del 30% de pendiente. Por estos motivos , además de un presupuesto establecido, proyectamos como idea un cubo con la cara superior incilnada , que definía la cubierta . La colocación en el terreno de dicho cubo , respondía básicamente a una orientación al sur para la captación solar mediante placas térmicas. Esta implantación en el terreno no ligada a los límites de la parcela, proporcionó un diseño de trazas interiores con la planta superior y escalera , y de trazas exteriores con las terrazas ligadas a dichos límites, creando una conexión visual constante con el entorno , y otorgándole a un forma cúbica , un movimiento permanente en su interior. Algunas de las ventanas del cubo responden a una actividad interior con el exterior, y algunas de ellas , van ligadas a la circulación y recorrido interior de la primera planta a la segunda , con conexión directa con el paisaje. En la planta sótano, se disponen dos depósitos de tratamiento y almacenaje de agua pluvial de la cubierta, con un sistema de recogida de aguas, para abastecer de agua tratada la casa por un lado, y para utilizarla sin tratar para regar el jardín por otro lado.

PV+3 DesignProjects
PV+3 DesignProjects
PV+3 DesignProjects
PV+3 DesignProjects
PV+3 DesignProjects
PV+3 DesignProjects
PV+3 DesignProjects
PV+3 DesignProjects
PV+3 DesignProjects